Raumvergabe Pfarrheim Zwettl / Buchung
Hier geht's zur Raumreservierung
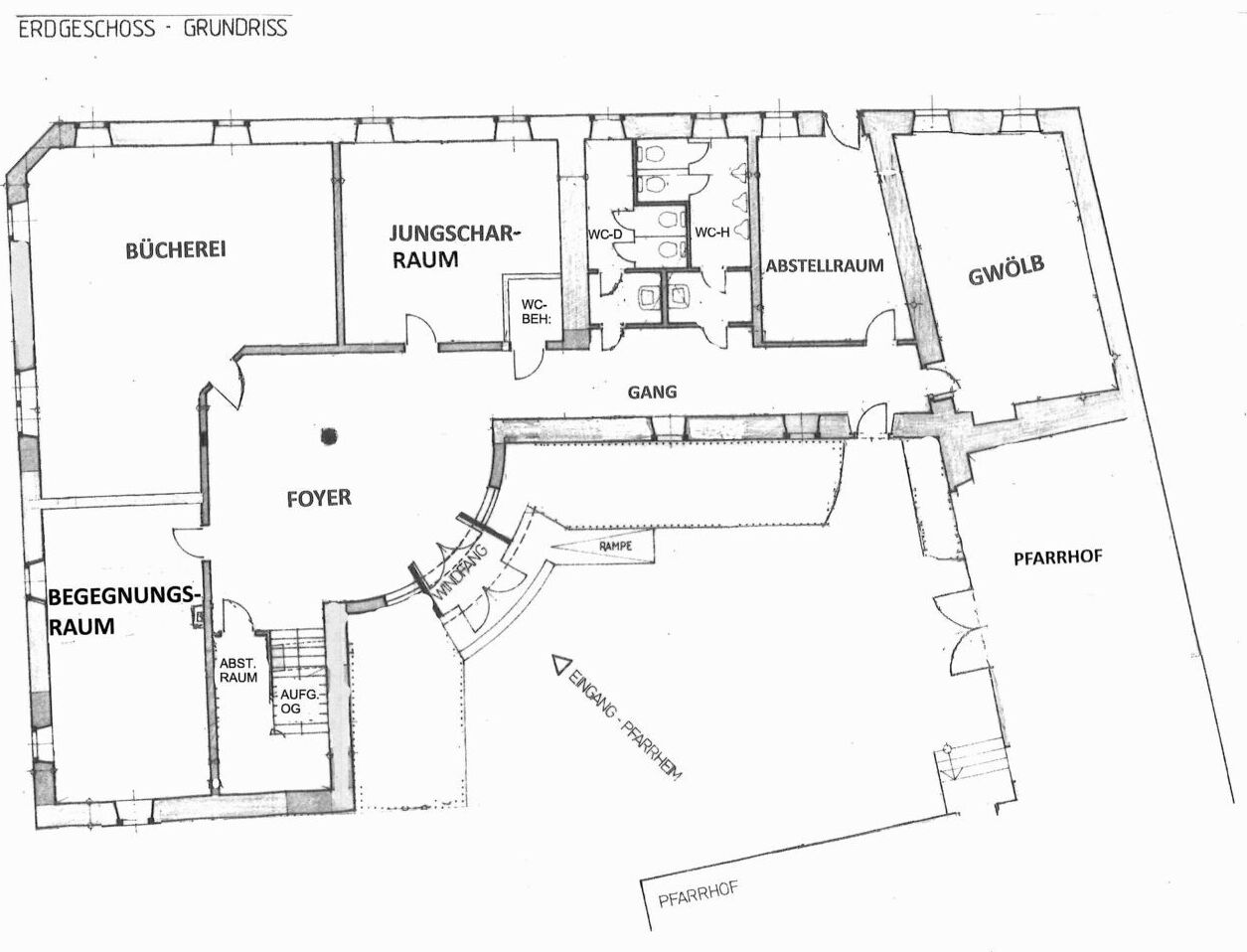
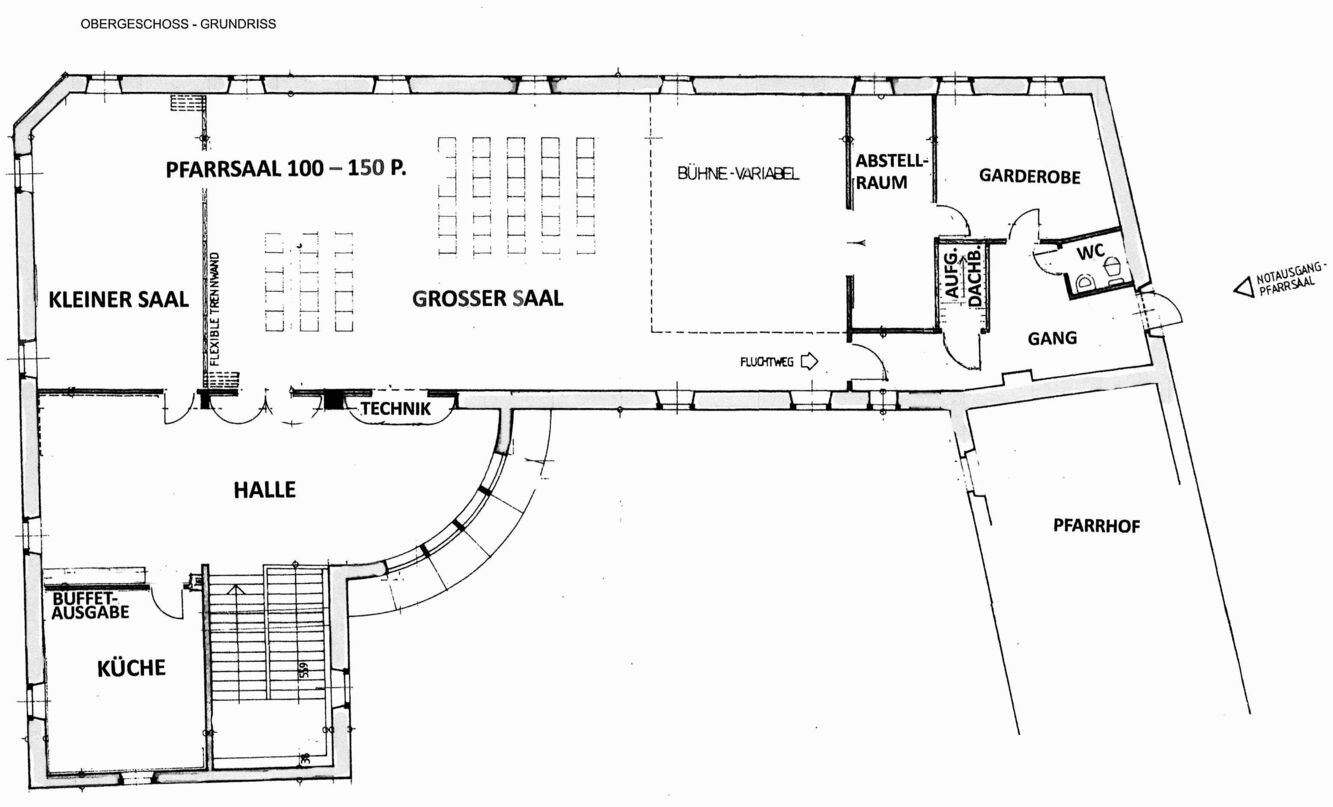
Räume / Allgemeines / Darstellung
- Vermietbare Räume
Alte Bezeichnung
Neue Bezeichnung
Seniorenraum (EG)
Begegnungsraum
Mütterrundenraum (OG, Tür links)
Kleiner Saal
Pfarrsaal (OG, Tür rechts)
Großer Saal
Mütterrundenraum + Pfarrsaal (OG)
Pfarrsaal
Jugendraum (EG/Foyer)
Jungscharraum
Jugendraum im ehemaligen Kuhstall (EG)
Gwölb (dzt. nicht vermietbar)
Foyer (OG)
Halle
Foyer (EG)
Foyer
Wir bitten unsere pfarrlichen Gruppen und Gäste, bei Raumreservierungen / Veranstaltungsbewerbungen künftig die neuen Namen oben rechts zu verwenden. Danke!


- Dieses Buchungssystem soll allen in der Pfarre Zwettl einen guten Überblick über die zeitlich zur Verfügung stehenden Räume im Pfarrheim bieten (Pfarrsaal, Begegnungsraum, Küche, Foyer, ...), erleichtert die Raumverwaltung, basiert jedoch auf Vertrauensbasis: Das Löschen, Verschieben und Verändern fremder Termine möge daher bitte unterbleiben. Danke!
- Obiger "Google-Kalender" zeigt die bisher gebuchten Termine an: links oben können Sie im Kalender navigieren, mit den Karteireitern "Woche", "Monat" und "Terminübersicht" rechts oben lässt sich die Darstellung des Kalenders ändern
Terminbuchung
- Es ist nicht möglich, direkt in obigem Kalender eine Eintragung vorzunehmen! Bitte klicken Sie hierfür oberhalb auf den Link Raumreservierung
- Hinweis: Mit einigen Browsern ist eine Buchung leider nicht möglich. "Edge" und "Chrome" können hierfür genutzt werden, bspw. mit "Firefox" ist unter Umständen keine Buchung möglich. Ggf. ist es auch vorher notwendig, sich von eigenen "Google/Gmail"- und "Doodle"-Konto abzumelden!
- Klicken Sie auf den Link Raumreservierung und wählen Sie den ensprechenden Termin aus: Es sind nur 2-Stunden-Blöcke auswählbar. Es ist leider nicht möglich, mehrere Blöcke gleichzeitig anzuwählen. Bitte wiederholen Sie daher im Bedarfsfall den gesamten Vorgang mehrmals (Hinweis zu den Zeitangaben: "AM" = Vormittag; "PM" = Nachmittag; "12.00 PM" = Mittag)
- Klicken Sie rechts unten auf "Buchen" und geben anschließend Ihren vollständigen Namen (= Ansprechperson), eine gültige E-Mail-Adresse, den Namen der Gruppierung bzw. den Anlass des Treffens und die benötigten Räume bekannt. Achtung: Ist ein bestimmter Termin - wenn auch für einen anderen als den gewünschten Raum - schon belegt, ist aus technischen Gründen keine Online-Reservierung mehr möglich. Bitte teilen Sie Ihren Buchungswunsch in diesem Fall persönlich Frau Evelin Preining mit (Kontakt: siehe unten)
- Wenn alle Felder eingetragen wurden, bestätigen Sie Ihre Eingabe, indem Sie auf "Fertigstellen" klicken. Die Terminbuchung ist damit abgeschlossen. Sie können das Buchungsfenster nun schließen oder allenfalls den Termin nochmals verschieben
- Kontrollieren Sie Ihre Buchung, indem Sie die aktuelle Seite (= die, die sie gerade lesen) nochmals neu laden, damit der Kalender aktualisieren kann
Terminverschiebung
- Sollte ein Verschieben des Termins nachträglich notwendig sein, so ist dies auch selbstständig möglich: Wenn Sie im "Google-Kalender" ("Buchungsübersicht Pfarrheim") auf Ihren Termin klicken, wird Ihnen dort ein "Doodle-Link" zur Änderung des Termins angezeigt. Klicken Sie auf "Mehr Details", um dem Link zu folgen oder kopieren Sie den Link in die Adresszeile Ihres Browsers und folgen Sie den Anweisungen auf dem Bildschirm. Ggf. ist es auch hier vorher notwendig, sich vom eigenen "Google/Gmail"- und "Doodle"-Konto abzumelden
Mehrere Termine gleichzeitig / Terminlöschung / Serientermin
- Ist ein Termin - wenn auch für einen anderen als den gewünschten Raum - schon belegt, ist aus technischen Gründen keine Online-Reservierung mehr für den gleichen Termin möglich. Bitte teilen Sie uns Ihren Buchungswunsch in diesem Fall persönlich mit - dieser kann von uns direkt in den Kalender eingetragen werden, sofern der betreffende Raum noch verfügbar ist
- Möchte Sie einen Termin gänzlich löschen oder einen Serientermin anlegen (Termin allwöchtentlich zur gleichen Zeit etc.), teilen Sie uns bitte Ihren Wunsch ebenfalls persönlich mit
Kontakt / Terminkoordinierung
- Frau Evelin Preining
Tel.: 0664/73678785
E-Mail: evelin1.preining@gmail.com