Zustimmung erforderlich!Bitte akzeptieren Sie Cookies von "piwikpro" und laden Sie die Seite neu, um diesen Inhalt sehen zu können.
Seitenbereiche:
  • zum Inhalt [Alt+0]
  • zum Hauptmenü [Alt+1]

Hauptmenü schließen
  • Unsere Pfarrgemeinde
  • (be-)lebt
  • Gemeinschaft
Hauptmenü ein-/ausblenden Startseite Suche ein-/ausblenden Barrierefreiheit-Einstellungen ein-/ausblenden
Pfarre Roitham am Traunfall
Pfarre Roitham am Traunfall
Barrierefreiheit Einstellungen
Schriftgröße
  • A: Schriftgröße: normal
  • A: Schriftgröße: groß
  • A: Schriftgröße: sehr groß
Kontrasteinstellungen
  • A: Standardfarben
  • A: Gelb auf Schwarz
  • A: Schwarz auf Gelb
  • A: Weiss auf Blau
  • A: Blau auf Weiss
Inhalt:

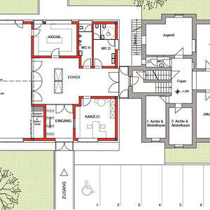
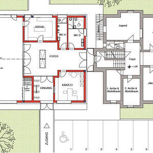
Informationsveranstaltung zur Errichtung des neuen Pfarrheimes, unser JakobiZentrum

Wir freuen uns, dass bei der Informationsveranstaltung am 13. März zur Errichtung des neuen Pfarrheimes, unser JakobiZentrum, die Bevölkerung großes Interesse gezeigt hat.

 

Es wurde über den Plan, die Finanzierung und die reale Umsetzung informiert.

 

Siehe dazu auch Informations-Folder

 

Besondes für die Umsetzung wird um Mithilfe der Bevölkerung gebeten.

 

Siehe dazu das Online-Formular "Meine Mithilfe"

 

Danke!

13. März 2017
13. März 2017
13. März 2017
13. März 2017
13. März 2017
13. März 2017
13. März 2017
13. März 2017
13. März 2017
13. März 2017
13. März 2017
13. März 2017
13. März 2017
13. März 2017
13. März 2017
13. März 2017
13. März 2017
13. März 2017
13. März 2017
13. März 2017
13. März 2017
13. März 2017
13. März 2017
13. März 2017
13. März 2017
13. März 2017
13. März 2017
13. März 2017
13. März 2017
13. März 2017
13. März 2017
13. März 2017
13. März 2017
13. März 2017
13. März 2017
13. März 2017
13. März 2017
13. März 2017
zurück

nach oben springen
  • Kontakt
    • Impressum
    • Datenschutz
Pfarre Roitham am Traunfall


Pfarrhofstraße 5
4661 Roitham am Traunfall
Telefon: 07613/5108
Mobil: 0676/8776-5615
pfarre.roitham@dioezese-linz.at
http://www.pfarre-roitham.at

Achtung seit Jänner 2026 geänderte Kanzleiöffnungszeiten!

Katholische Kirche in Oberösterreich
Diözese Linz

Herrenstraße 19
4020 Linz
Ihr Kontakt zur
Diözese Linz
anmelden
nach oben springen