Zustimmung erforderlich!Bitte akzeptieren Sie Cookies von "piwikpro" und laden Sie die Seite neu, um diesen Inhalt sehen zu können.
Seitenbereiche:
  • zum Inhalt [Alt+0]
  • zum Hauptmenü [Alt+1]

Hauptmenü schließen
Hauptmenü ein-/ausblenden Startseite Suche ein-/ausblenden Barrierefreiheit-Einstellungen ein-/ausblenden
Pfarrgemeinde Michaelnbach
Pfarrgemeinde Michaelnbach
Barrierefreiheit Einstellungen
Schriftgröße
  • A: Schriftgröße: normal
  • A: Schriftgröße: groß
  • A: Schriftgröße: sehr groß
Kontrasteinstellungen
  • A: Standardfarben
  • A: Gelb auf Schwarz
  • A: Schwarz auf Gelb
  • A: Weiss auf Blau
  • A: Blau auf Weiss
Inhalt:

Pfarrheim Neubau, Bericht

Vorstellung des "Neuen Pfarrheims"

Die Einladung finden Sie hier!

 

Der Pfarrheimneubau wurde am 26.01.2025 im Landgasthof Schörgendorfer vorgestellt.

Er soll am Ort der ehemaligen Schule, jetzigem Parkplatz neben der Kirche entstehen.

Warum der Neubau notwendig wird, sind den Umständen geschuldet, dass im alten Gebäude zu wenig Platz vorhanden ist, und dieses weder behindertengerecht noch dem Stand der Technik entsprechend ist.

 

Viele Gegenstände, die der Pfarre gehören, müssen aus Platzmangel bei Privatpersonen eingelagert werden. Ebenso sind Aktivitäten wie PGR -Sitzungen oder Proben vom Chor oder Noten und Instrumente einlagern nicht möglich. Beim Jungschartreffen platzt das alte Pfarrheim aus allen Nähten. Das neue Gebäude wird mehr Platz bieten, einen gepflasterten Außenbereich für Agapen haben, ein behindertengerechtes öffentliches WC verfügen. Der Keller der ehemaligen Schule wird wieder aktiviert, so entsteht der dringend benötigte Stauraum.

 

Die Rede des Obmannes des Fachteams Finanzen, Franz Fellinger, finden Sie hier!

 

Noch einige Bilder von der Vorstellung.

    Das aktuelle Pfarrhaus
    Das aktuelle Pfarrhaus
    Eingang Pfarrbüro aktuell
    Eingang Pfarrbüro aktuell
    Pfarrbüro aktuell
    Pfarrbüro aktuell
    Pfarrheim aktuell
    Pfarrheim aktuell
    Franz Fellinger, Obmann des Fachteams Finanzen
    Franz Fellinger, Obmann des Fachteams Finanzen
    Pfarrer und Architekt
    Pfarrer und Architekt
    Architekt bei der Planpräsentation
    Architekt bei der Planpräsentation
    Pfarrheimneubau Vorstellung
    Pfarrheimneubau Vorstellung
    zurück
    weiter

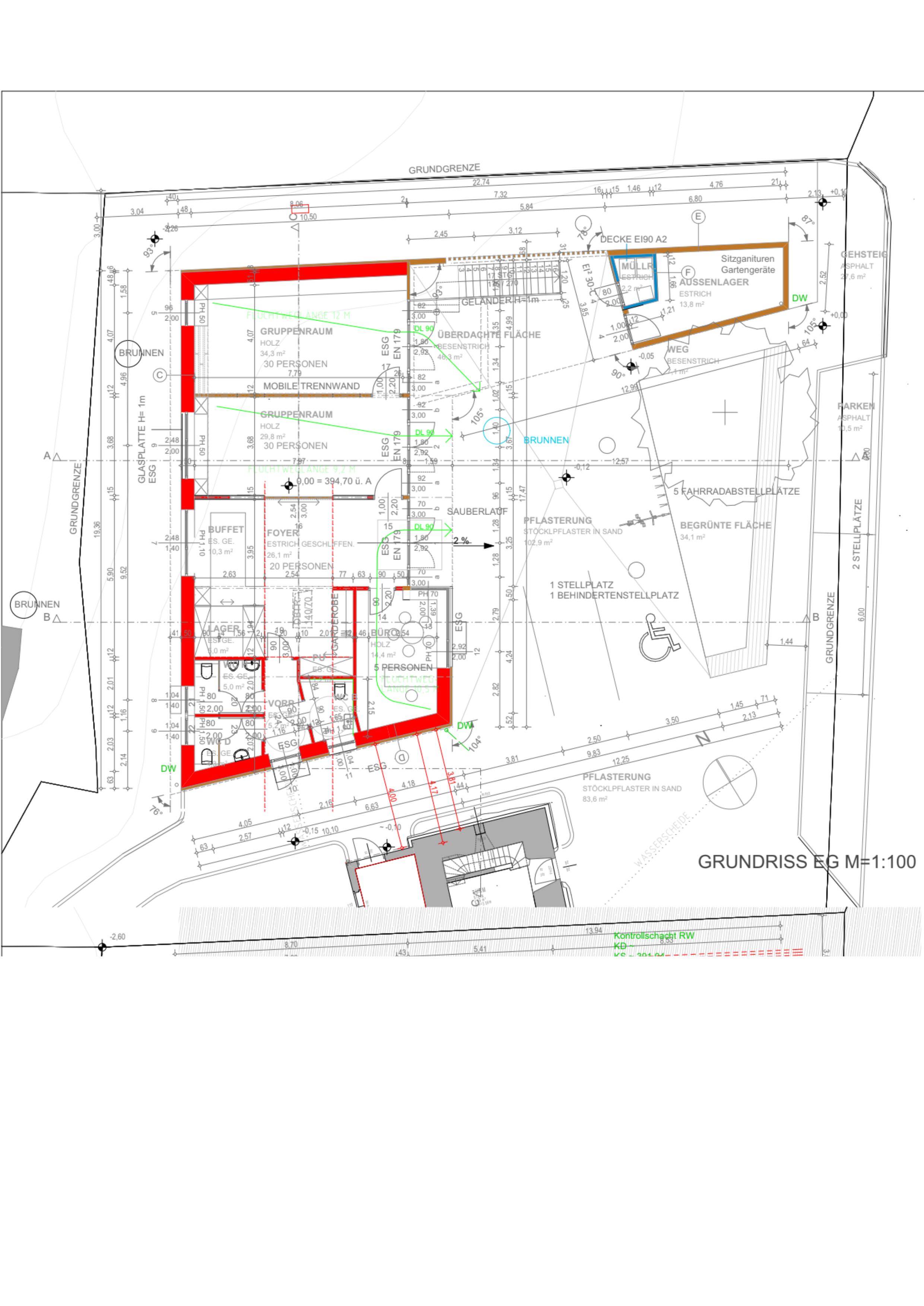
    Den Plan von Archtekt Georg Kirchweger finden Sie hier!

    zurück

    nach oben springen
    • Kontakt
      • Impressum
      • Datenschutz
    Pfarrgemeinde Michaelnbach


    Florianiweg 1
    4712 Michaelnbach
    Telefon: 07277/2525
    pfarre.michaelnbach@dioezese-linz.at
    https://www.dioezese-linz.at/michaelnbach
    Katholische Kirche in Oberösterreich
    Diözese Linz

    Herrenstraße 19
    4020 Linz
    Ihr Kontakt zur
    Diözese Linz
    anmelden
    nach oben springen